公司动态
点击下载:不锈钢绿巨人在线视频官网图集 12S101 PDF格式
	
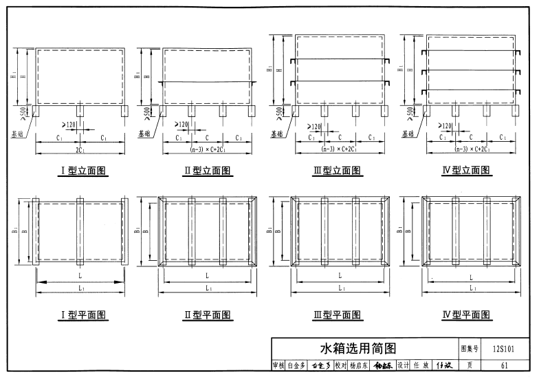
12S101不锈钢绿巨人在线视频官网图集(选用简图)
	
12S101不锈钢绿巨人在线视频官网图集(选用表1)
	
12S101不锈钢绿巨人在线视频官网图集(选用表)
	
12S101不锈钢绿巨人在线视频官网图集(组装图)
	
不锈钢绿巨人在线视频官网图集 12S101 (外形图):
	
不锈钢绿巨人在线视频官网图集 12S101 (选用表一):
	
不锈钢绿巨人在线视频官网图集 12S101 (标准板):
	
不锈钢绿巨人在线视频官网图集 12S101 (基础图):
	
不锈钢绿巨人在线视频官网图集 12S101 (选用表二):
	
不锈钢绿巨人在线视频官网内人梯图集:
	
不锈钢绿巨人在线视频官网外人梯图集:
	
不锈钢绿巨人在线视频官网人孔图集:
	
不锈钢绿巨人在线视频官网配管接头安装图集:
	
不锈钢绿巨人在线视频官网溢流管透气管安装图集:
	
不锈钢绿巨人在线视频官网玻璃管液位计安装图集:
	
不锈钢绿巨人在线视频官网浮球阀安装图集:
	

 微信服务号
微信服务号 鄂公网安备 42011202000782号
鄂公网安备 42011202000782号 
  
  
  
  
  
  
  
 